物件紹介 中古物件
上尾市小敷谷 中古戸建
中古物件
NEW
概要
| 物件種目 | 中古物件 |
|---|---|
| 最寄駅 | JR高崎線 上尾駅 |
| 間取タイプ | 4LDK |
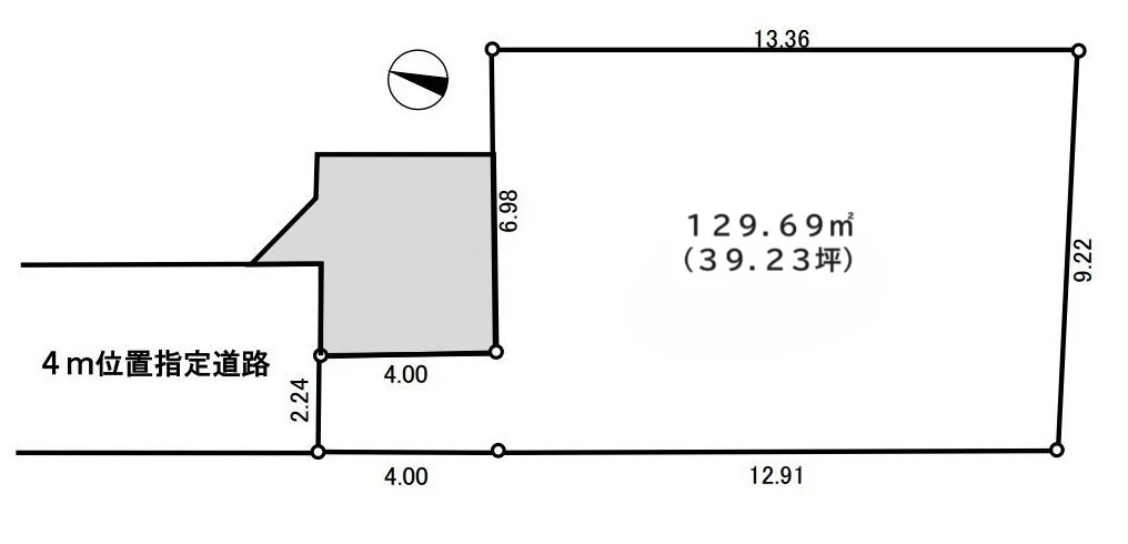
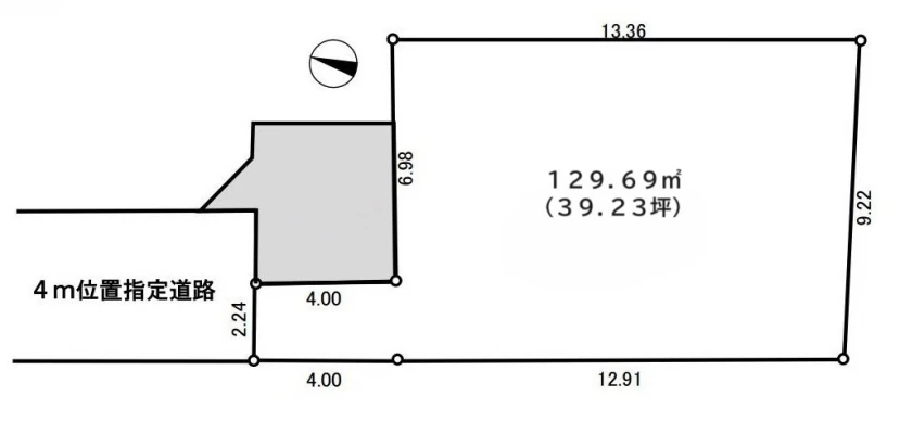
| 物件所在地 | 上尾市小敷谷632-2 |
| 交通 | バス乗車13分「第一団地南」停徒歩4分 |
| 価格 | 1,480万円 | 建物面積 | 86.11㎡(26.04坪) |
|---|---|---|---|
| 土地面積 | 129.69㎡(39.23坪) | 構造・規模 | 木造瓦葺2階建 |
| 土地権利 | 所有権 | 間取内訳 | 4LDK |
| 地目 | 宅地 | 築年月 | 築39年 |
| 都市計画 | 市街化区域 | 建築確認番号 | - |
| 用途地域 | 第一種低層住居専用地域 | 現況 | 空家 |
| 建ぺい率 | 50% | 設備 | 公営水道・都市ガス・本下水 |
| 容積率 | 80% | 駐車スペース | 1台可(車種による) |
| 他に私道面積 | - | 接道状況 | 北西側私道 幅員約4m 接道約2.24m |
| 他の法令上の制限 | 景観法、建築基準法第22条区域、 | 引渡日 | 相談 |
| 取引態様 | 媒介 |
|---|
| 備考 | 現況販売 |
|---|
